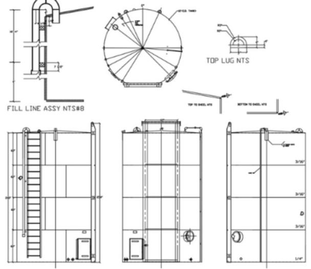
400 BBL New Skidded Vertical Tanks

Description
We have 150 of these NEW 400bbl skidded vertical tanks available. All built to API12F specs. Contact the seller for additional information.
Specifications
| Manufacturer | Dragon |
| Model | 400BBL Vertical Tanks |
| Year | 2013 |
| Condition | New |
| Stock Number | N/A |




